古建筑不仅是文化艺术的栖息地,也是文化传承的重要载体。为了加强文物保护利用和文化遗产保护传承,推动中华优秀传统文化创造性转化、创新性发展,云顶集团 “古建焕新生,匠心筑未来”中华文化传承团开展了一系列暑期“三下乡”社会实践活动。

寻迹祠堂——启幕古建复苏,丈量岁月痕迹
宗祠作为古建筑中的一种特殊类型,历史意义深远而独特。其不仅是家族祭祀祖先、凝聚族人的场所,更是中华民族尊宗敬祖、弘扬孝道文化的实体体现。
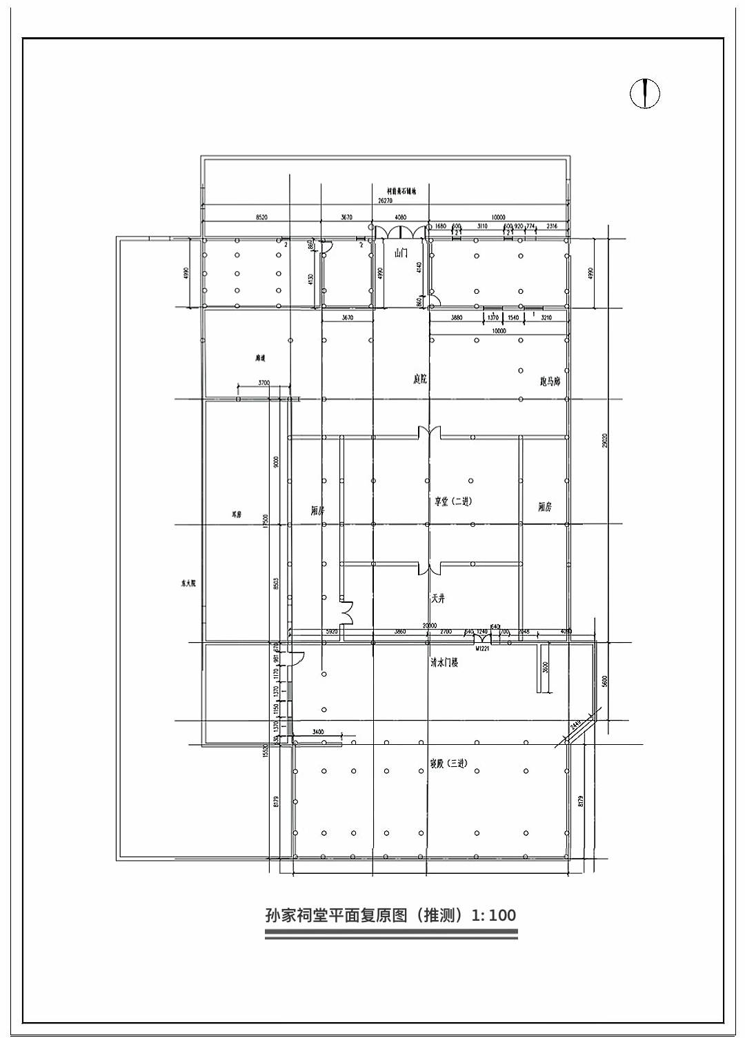
孙家祠堂,位于江苏省南京市江宁区龙眠大道东约200米处。实践初期,团队成员们通过查找资料了解到,孙家祠堂原是江宁县下王墅村的家族宗祠,始建于明末清初,占地面积约1200平方米,距今已有400多年的历史,作为几乎是南京地区现存规模最大的祠堂建筑,它也曾有精致的建筑装饰,见证过无数百姓的世代变迁。破损问题、风雨侵蚀、自然老化以及人为因素的破坏,祠堂的倒塌速度在近年来急剧加快。
为了保护孙家祠堂及其中有价值的建筑装饰、祠堂格局,测绘分队开始对孙家祠堂进行了实地调研和测绘。但现场的情况并不乐观,肆意生长的植物,坍塌的护墙,被淤泥阻挡的道路,丢失的砖雕……通过无人机起飞后拍摄到的鸟瞰视角,实践分队的成员们观察到植物已经长满祠堂的各个角落,这意味着使用激光扫描技术为祠堂留下模型数据的想法行不通了。团队成员积极查阅资料,与指导老师充分沟通,从建筑学专业角度出发,最终找到了合适的解决方案,即通过考察南京其他地区的明清祠堂,查阅文献资料,实现对孙家祠堂平面的复原和更多有价值之处的探索。


调研勘绘——描绘历史轮廓,复原时光印记
为了更好地研究明清代建筑群,团队成员走进江宁佘村潘氏祠堂。据《潘氏宗谱》记载,该组建筑是清朝顺治初年始建,后又多次重新改造。祠堂建筑主体结构为三房两进式,占地面积380平方米。门厅、大厅内横梁上雕有花卉图案,大门上有精美砖雕,民国十年,潘氏宗族集资将其新建,现如今被改造为村史馆,保留建筑美的同时向公众开放,展示佘村从古至今的发展历程及潘氏宗族相关的历史文化。
通过对佘村明清古建筑群的实地调研,团队成员们发现不能单想着建筑及其建筑装饰本身,也不能过于钻进“传承”的漩涡,要了解在古建筑中发生过的故事,走进原住村民们的记忆。
通过不懈努力,最终团队队长刘诗阳在清代卢文弨的《抱经堂文集》中找到相关记载,大致意思为江宁王墅孙氏自明代初期迁至此地,后因子孙繁衍昌盛分为两支,一支建祠堂为西祠,另一支则建塘沿祠。综合其他资料显示,西祠就是如今的孙家祠堂,而塘沿祠则在江宁孙家边。为了进一步论证资料的可靠性,试图找到与孙家祠堂有关的记载,团队前往社区及江苏省方志馆调研学习。
最终通过资料、村史和县志的多方论证,同学们找到了对于孙家祠堂的相关资料,也确认了《抱经堂文集》中的记载属实,获得了珍贵的史料资源,孙家祠堂的初步平面复原顺利完成。与此同时,这段实践调研的过程仿佛是在穿过千百年与历史对话,那种拨开历史迷雾,和古人指尖相触的感觉深深烙印在团队成员的心里。




节孝新释——探寻乾隆古坊,映照现代女性光华
尽管孙家祠堂的大部分建筑只剩断垣残壁,但在东西两侧仍存有两座保存较为完好的石刻建筑——节孝坊。西侧的一座为明代节孝坊,上刻“旌表赠朝议大夫孙大中妻恭人张氏节孝”,对联:“教子成名无违夫子,事姑尽孝问我诸姑”。东侧的一座是御赐的,较西侧要大很多,做工也更加精美。团队猜想也是因为这个原因,其上砖雕、圣旨碑都已丢失。根据所得资料的描述以及对《营造法式》的学习,团队对这座清乾隆年间建造给儒生孙振乾之妻王氏的节孝坊绘制了立面复原图、花坊细节,并对其进行了建模和3D打印,希望能为其留下数字化痕迹。
节孝坊,作为明清时期特有的文化符号,不仅承载着深厚的历史和文化价值,也反映出了当时社会对女性角色的期望与赞扬。它们是贞节与孝顺的象征,为了纪念那些守节的女性而建立,彰显了封建社会对女性道德行为的高度评价。作为石雕艺术的杰出代表,节孝坊集雕刻、绘画、书法和文辞艺术于一体,具有极高的艺术价值。在建筑美学上,节孝坊展现了对称、均衡、节奏和韵律等独特的美学特征。
随着社会的发展和进步,曾经建立在性别不平等基础上的封建观念逐渐被挑战和改变。现代社会倡导性别平等,女性的能力和价值不再受限于传统角色和期望,她们在各个领域展现着自己的才华和贡献。







匠心独运——筑梦古建未来,启迪文保新篇
团队每周开展交流讨论,对于实践中出现的问题、了解到的细节以及最新查证的资料进行学习探讨,并就孙家祠堂的现状,结合专业知识提出保护方案,在深入对保护孙家祠堂理解的同时,也给其他古建筑保护提供一些参考。
23建筑学(3)班的彭鹭桢和朱茗暄就孙家祠堂损毁较为严重,原地保护可行难度高的现况,提出建筑结构加固以防止进一步倒塌、材料保护与修复以恢复建筑外观、周边环境整治以提升整体保护状态、减少植被生长带来的影响、经上级批准后将仅存的建筑文物拆解后异地修复保存。
针对其他古建筑的保护。团队提出七点措施:进行全面的勘察评估,建立档案;制定基于“原真性”和“最小干预”原则的保护规划;采用现代技术如三维扫描进行数字化记录;加强日常管理和维护,确保长期保护;通过教育和宣传活动提高公众保护意识;多元化筹集保护资金,包括政府、社会、私人或公益资助;考虑将古建筑转变为文化展示或教育空间,实现保护与利用的平衡。
除此之外,团队成员们充分利用丰富的资料,运用专业的技艺,对古建筑之美进行创新创作,对宗祠进行了全方位的艺术再现。速写笔尖流转,勾勒出建筑轮廓的刚劲与柔美;水彩颜料在纸上绽放,渲染出宗祠历史的厚重与色彩;板绘线条细腻入微,捕捉了雕刻艺术的精致与繁复,展现出对传统工艺的敬畏与传承。这些艺术创作不仅赋予了宗祠新的生命,也为后续的保护与修复工作提供了宝贵的视觉资料。
文化遗产的传承不仅需要保护和维护,更需要创新与传播,使之在现代社会中焕发新的活力和意义。基于这样的认识和愿景,刘诗阳将对古建筑的深刻理解与现代设计理念相结合,创作了独具匠心的文创产品。产品不仅承载了宗祠的历史与文化,更以其独特的艺术形式,让更多人能够接触并感受到古建筑的魅力。后期,团队也将在大学生创新创业项目中继续深耕建筑文化与文创产品结合的领域,让古建筑的保护与传承成为一种生活态度和文化追求。
在本次实践活动中,团队还运用新媒体平台发布记录了和实践过程中遇到问题,通过社交媒体让超过25万人看到了保护古建筑,传承建筑文化及中华传统文化的意义。让古建筑焕发新生命,不仅仅是要修复一座座古老的建筑,更是要唤醒一段段尘封的记忆,唤醒一颗颗对美、对历史、对文化有着深切渴望的心。“保护形貌,更要存留记忆”,团队表示,希望无论是文保单位,普通群众还是专业人士都加入到古建筑保护的行列中来,每一份力量都至关重要。
